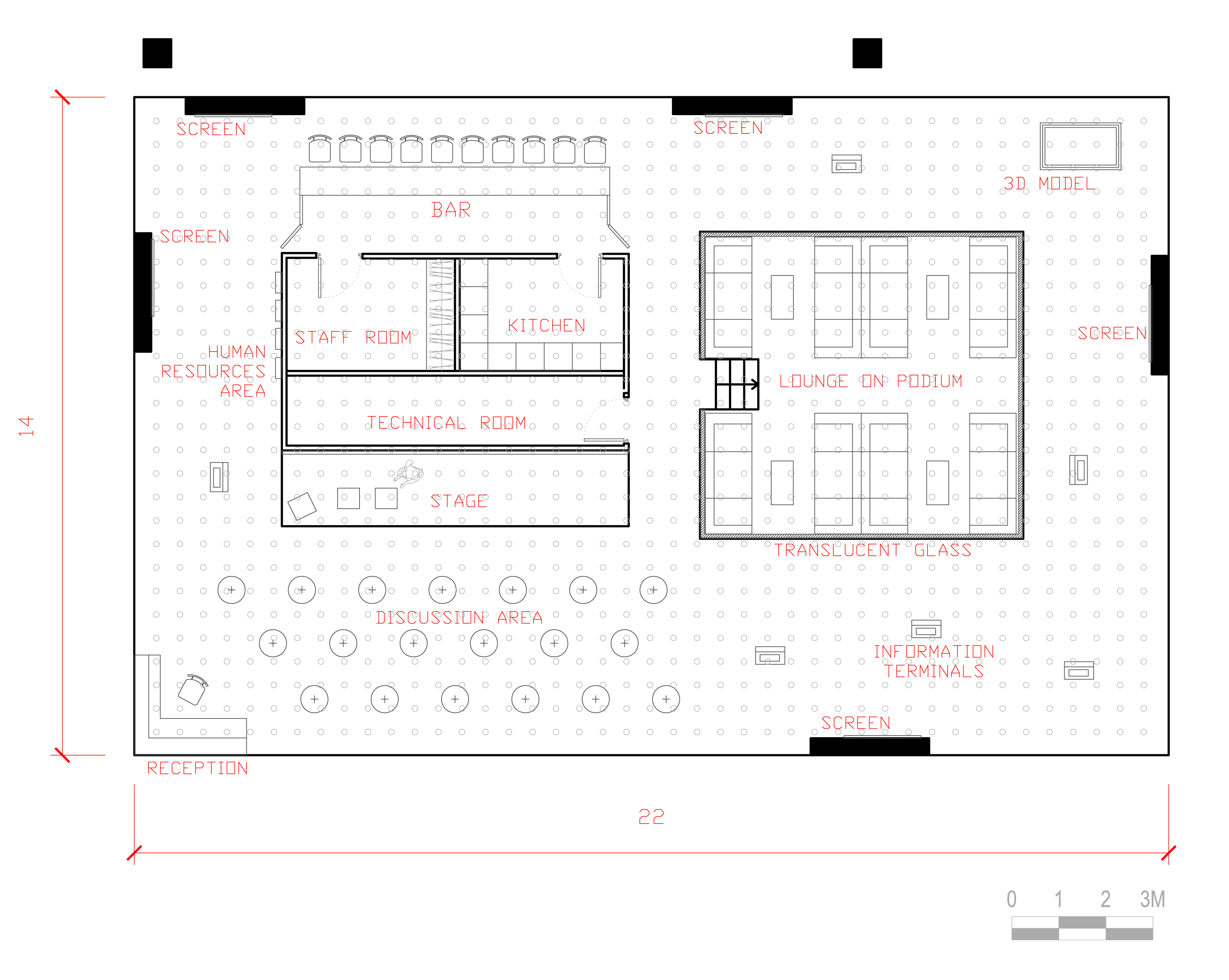
Spitzke дизайн выставочного стенда

 

Заказчик: Brandufaktur GmbH

Место: Германия, г. Берлин, выставка INNOTRANS 2016

Общая площадь: 300 кв. м.

Проектирование: 2015

Статус: проект

Выполненные работы:  дизайн, 3D визуализация.

Команда: Е. Кропанева