Лукоморье — загородный дом с участком


 

Скачать альбом проекта

Панорамный вид участка

Заказчик: частное лицо

Место: Россия, Свердловская область, поселок Лукоморье

Общая площадь: 1800 кв. м.

Проектирование: 2017

Статус: в процессе разработки

Выполненные работы: дизайн-концепция, планировочное решение, 3D визуализация, рабочий проект

Команда: Е. Кропанева, В. Злоказов, А. Ахмеров, А.Чебыкина

Участок расположен вблизи озера Щелкун в коттеджном поселке „Лукоморье“. Дом для постоянного проживания семьи из 4-8 человек спроектирован в духе швейцарского chalet. Все постройки на участке выдержаны в едином ключе как по материалам, так и по логике объемно-планировочных решений и по внешнему виду. Участок расположен на ровной местности и к южной границе участка близко подходит лес.

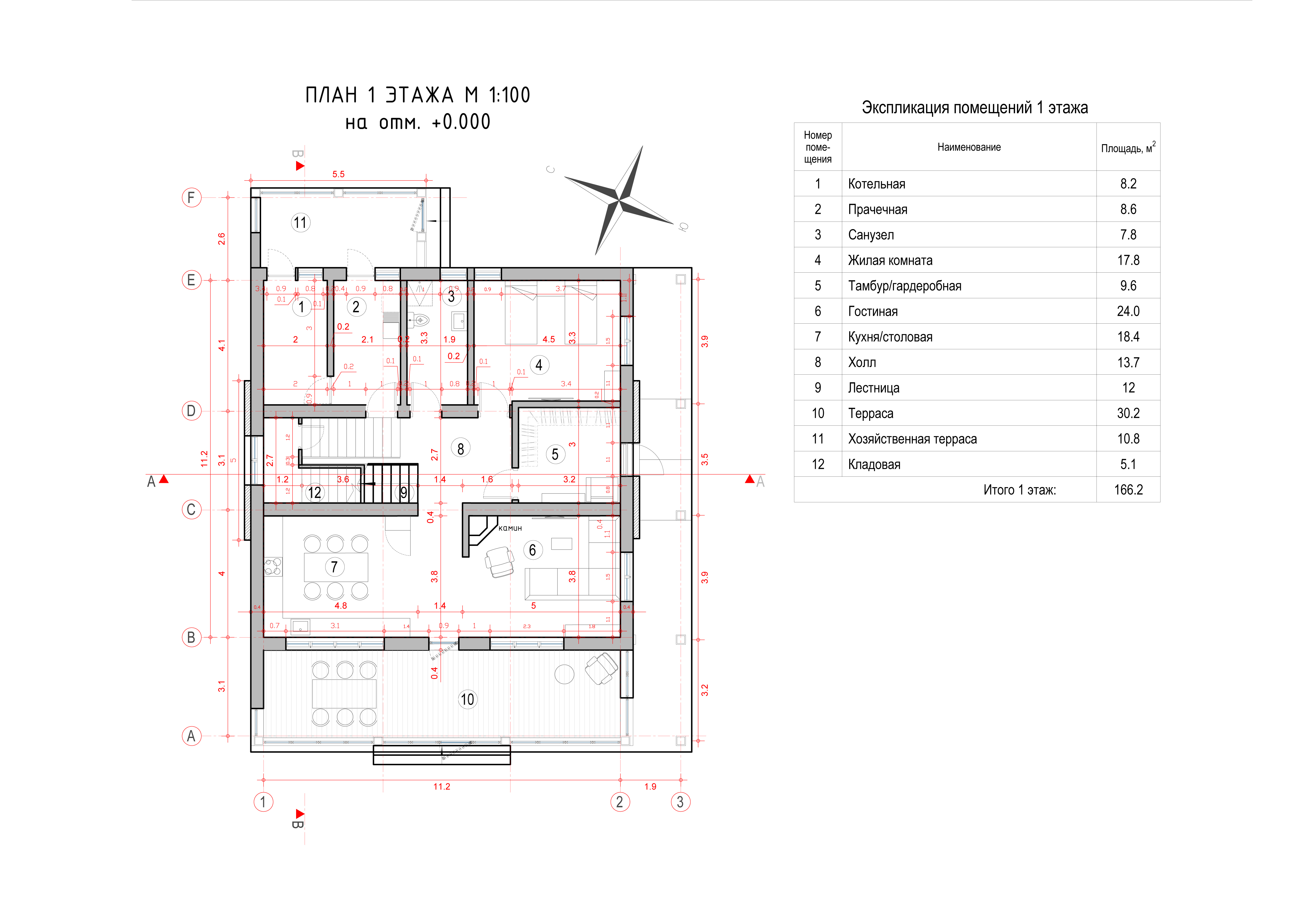
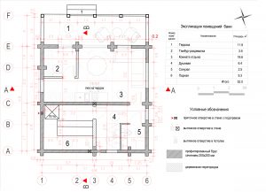
ДОМ

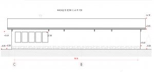
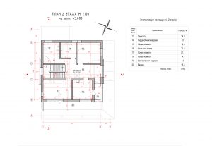
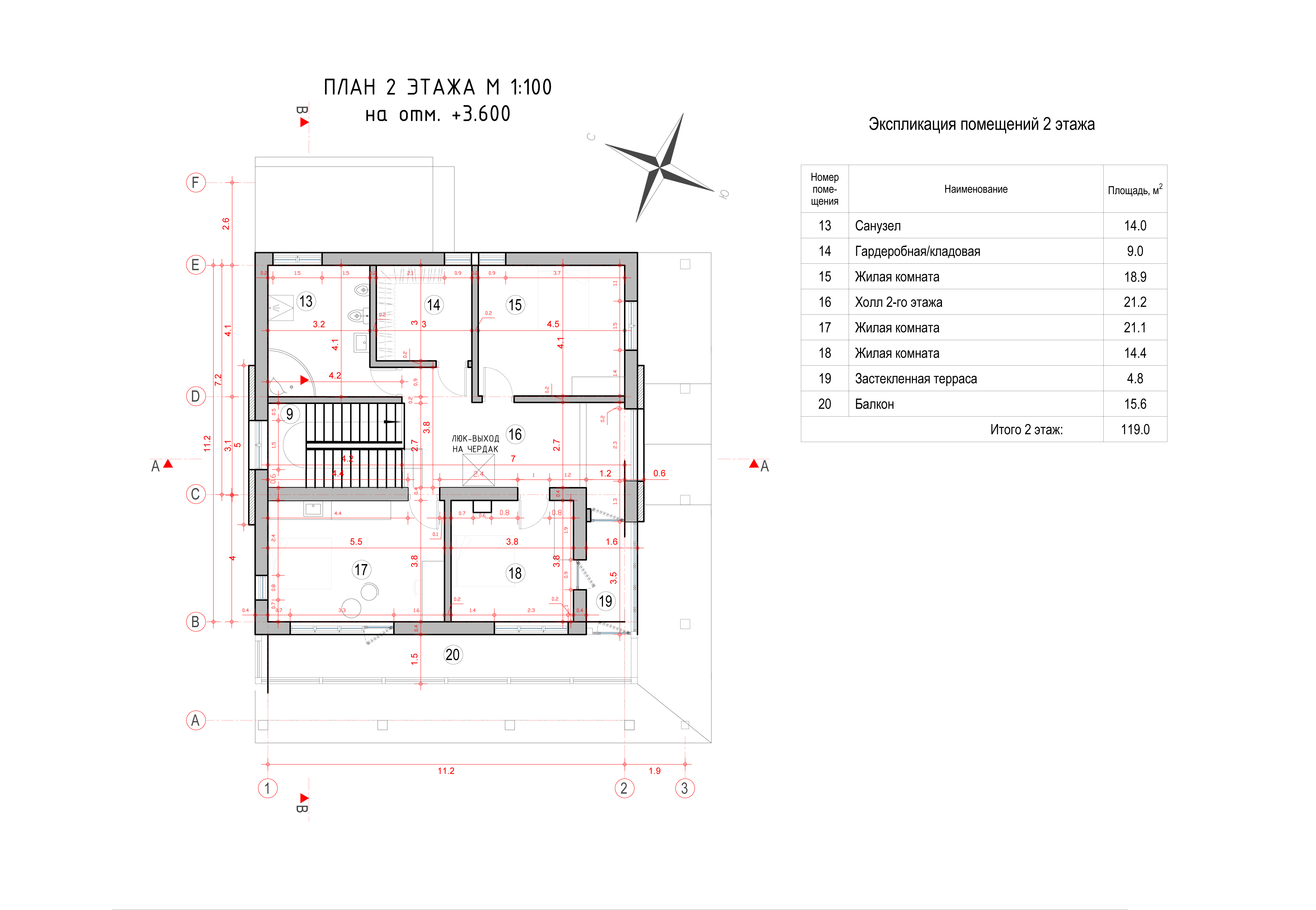
В проекте сделаны акценты на рациональность планировочных решений и лаконичность объемов. Материалы облицовки стен — ровная штукатурка и декоративный камень. В то же время, применение натурального дерева в отделке и при решении некоторых конструктивных элементов, таких как, например, терраса, балконы и крыша, придает постройке живописный вид. Дом ориентирован по сторонам света так, что гостиная, кухня и жилые комнаты выходят на юг, а вспомогательные и хозяйственные помещения — на север. В доме есть две террасы: одна, полностью остекленная — жилая, продолжает кухню/гостиную наружу к пространству для отдыха на газоне, а другая является хозяйственной, связанной с помещениями прачечной и котельной, с выходом на хозяйственную площадку с северной стороны дома. Вход в дом находится под навесом галереи. Входной тамбур совмещен с гардеробной, а под просторной лестницей организовано помещение кладовой. На втором этаже располагаются три спальни, просторные гардеробная и санузел, а также два балкона и зимний сад. Потолки второго этажа полноценной высоты 3 м.

ГАРАЖНО-ХОЗЯЙСТВЕННЫЙ КОМПЛЕКС


Рассчитан на постоянное хранение двух автомобилей. Одноэтажное строение, с небольшой овощной ямой, комнатой для рассады и местом для огородных принадлежностей и разной техники.

БАНЯ

Одноэтажная квадратная в плане баня из профилированного бруса 200х200 мм оснащена электрической печью. Терраса бани обращена к дому. Декоративные детали выполнены из темного дерева.

МАЛЫЕ ФОРМЫ

На участке спроектирована летняя открытая беседка из деревянного бруса. В центре беседки может разместиться большой круглый стол, за которым может собраться вся семья и гости. По бокам от круглой скамьи сделаны места для сидения и лежания, чтобы можно было сидя в беседке свесить ноги в траву газона. Задняя стена беседки обвита девичьим виноградом.
В общем ключе выполнены также конура для собаки и входные ворота

УЧАСТОК


Планировочно участок разделен на несколько зон: фруктовый сад перед домом, хозяйственная площадка, рекреационная зона с большим ровным газоном, новогодней елью, альпийской горкой и мангалом; зона плодовых культур и кустарников и огород. Центром участка является рекреационная зона, которая многофункциональна и на которую своеобразными „фасадами“ открываются постройки.