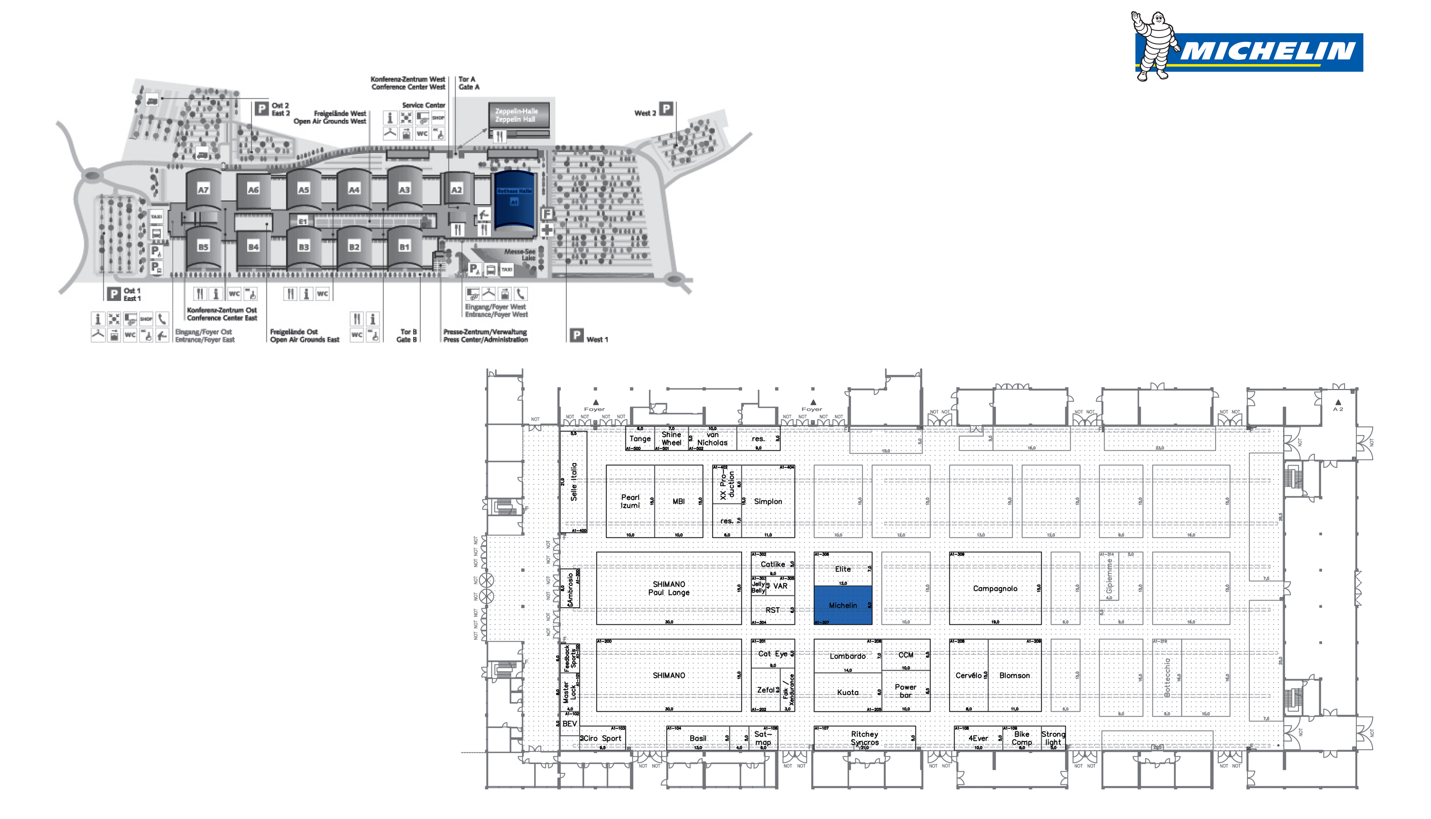
Заказчик: Walbert-Schmitz GmBH, Michelin Eurobike
Место: Россия, г. Екатеринбург
Общая площадь: 72 кв. м.
Проектирование и строительство: 2011
Статус: концепция
Выполненные работы: концепция, планировочное решение, 3D визуализация.
Команда: Е. Кропанева








